Brener Group ; inşaat, gayrimenkul proje geliştirme, kentsel dönüşüm, mimari tasarım, restorasyon ve yenileme, İç tasarım ve dekorasyon, proje yönetimi, orca çelik evler, master frame bina güçlendirme, bina ve site yönetimi, sağlık turizmi, ahşap mobilya ve mutfak üretimi,  alanlarında hizmet vermektedir…

Gallery

İletişim

Bağdat Caddesi No: 253 D:9 P.K. Caddebostan, İstanbul / TÜRKİYE

info@brener.com.tr

+90 216 486 00 00

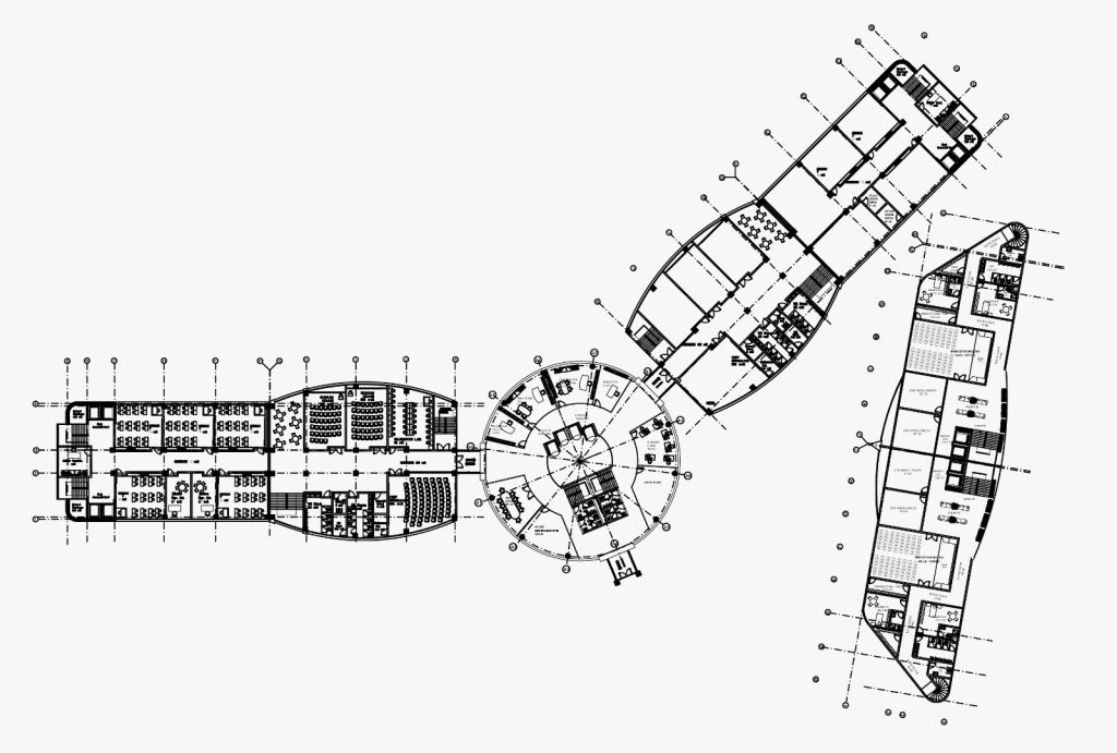
ÜNİVERSİTE KAMPÜSÜ AVAN PROJESİ 

KURULUŞ
+
TAMAMLANAN PROJE
+
DEVAM EDEN PROJE
+
ÖDÜLLÜ PROJELER